Moradia T3 Gaveto, Loureira, Vila Verde Vila Verde, Loureira
- Moradia
- 3
- 3
- 240 m2
Descrição
🏡Vende-se Moradia T3 de Gaveto - Loureira ,Vila Verde - Braga
Localizada numa zona tranquila e familiar na Freguesia da Loureira, a 5 min do centro de Vila Verde e a 15 min de Braga.
Com bons acessos e a curta distância de comércio e serviços locais, escolas e transportes;
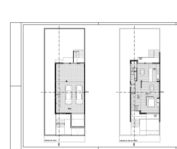
Composta por três pisos distribuídos da seguinte forma:
Piso inferior:
- Garagem;
Rés-do-chão:
- Hall de entrada;
- Cozinha;
- Sala de jantar e sala de estar;
- Lavandaria;
- WC de serviço;
Piso Superior:
- Suíte com closet;
- Quartos com roupeiros embutidos;
- WC Completo de apoio aos quartos;
Outras Caraterísticas:
- Pré-instalação painéis solares;
- Instalação completa ar condicionado;
- Caixilharia de alumínio com rotura térmica;
- Vidros Duplos;
- Louça sanitária suspensa;
- Estores elétricos;
- Pré-instalação alarme;
- Recuperador de calor;
- Bomba de calor 300l para aquecimento de águas;
- Vídeo porteiro;
Personalização dos acabamentos mediante o caderno de encargos.
📌 Moradia na fase inicial de construção, concluída em 15 meses.
Aviso: Este anúncio foi gerado por rotina informática, pelo que as informações nele contidas não são vinculativas e estão sujeitas a confirmação.
🔺Agende já a sua visita!
Características
- Referência: 1506
- Estado: Em construção
- Preço: 360.000 €
- Área útil: 240 m2
- Área do terreno: 238 m2
- Área de implantação: 120 m2
- Área bruta: 360 m2
- Quartos: 3
- WC: 3
- Ano de construção: 2026
- Certificado energético: A
Divisões
Localização
Contacto
InShare Braga, Braga
- InShare - Mediação Imobiliária, Unipessoal, Lda
- AMI: 16317
- geral@inshare.pt
- Braga, 4700-000 Braga
- +351 967 045 785 (Chamada para a rede fixa nacional) / +351 919 626 303 (Chamada para rede móvel nacional)
